2019年度|山形県金山町|調査・利活用提案
山々とまちが連続する美しい景観を魅力とする山形県金山町。ヨコミゾ研究室では2018年度からまちづくり活動に携わってきた。
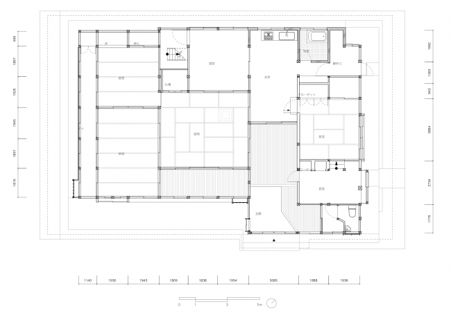
今年度は、田茂沢地区焼山を対象として、7棟の実測調査と、空き家となっている家屋を中心とした将来計画の提案を行うこととなった。この地区は、町の中心部から山を越えたところに位置し、山裾、水田、神室山と台山を源流とする清流上台川に囲まれている。金山を訪れる人々と地域住民が共に山里の文化を体感・蓄積していくことのできる場所づくりを検討し、実測から提案までを一冊の報告書としてまとめた。
<調査期間概要>
2019年11月19日~21日:現地実測
2019年12月~2020年1月:図面作成
2020年1月〜2020年2月:利活用提案検討
2020年2月末:報告書完成

